Ref. V00893
Terreno con proyecto en Felanitx

A CONSULTAR

Felanitx
225m2
Construidos
3
Habitaciones
2
Baños
2
Plazas de Parking

Piscina
15936m2
Terreno
Terreno con proyecto en Felanitx
Felanitx / Mallorca

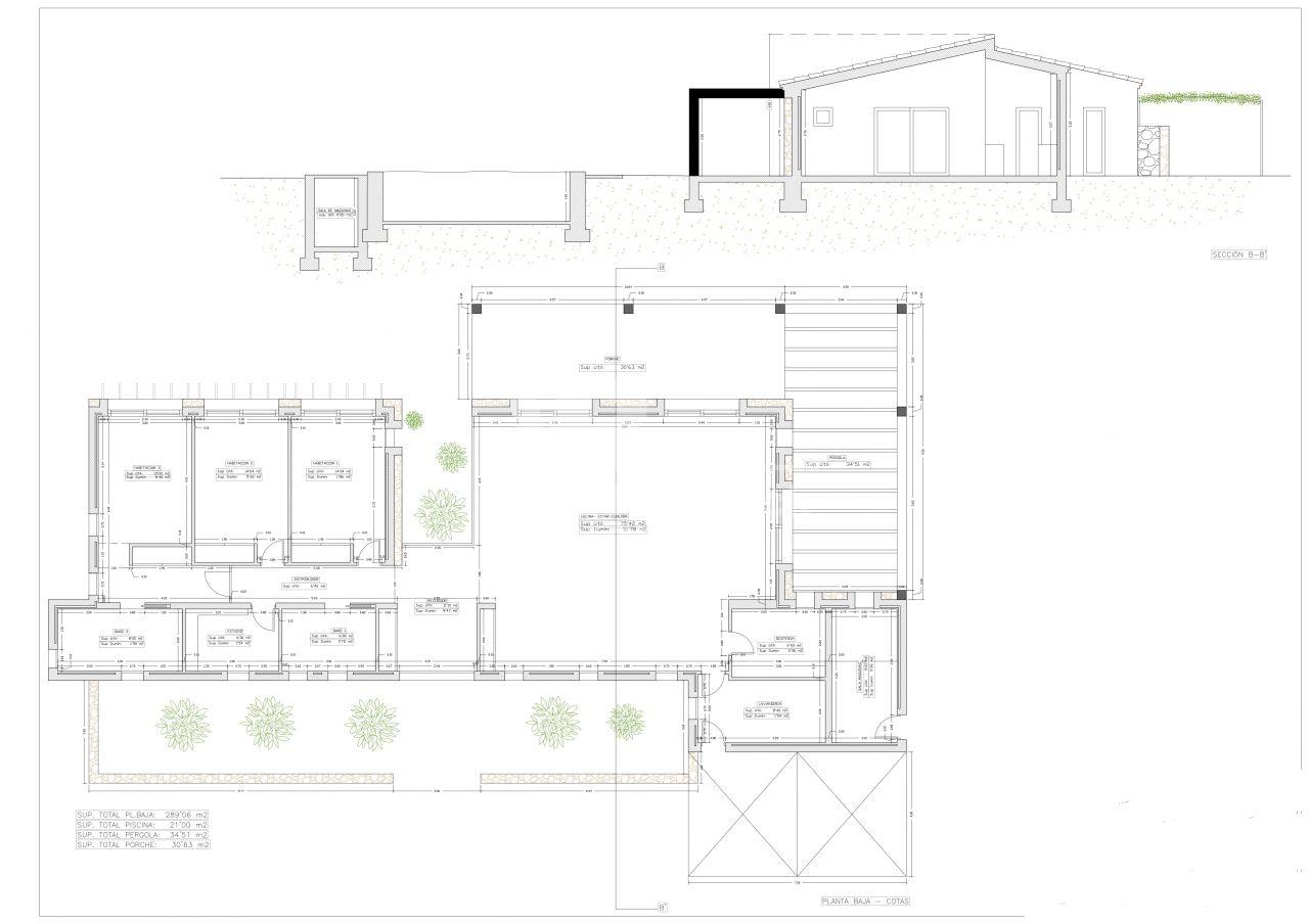
Terreno de 15.936 m2 con proyecto en "Son Valls" (Felanitx) con bonitas vistas a "San Salvador". 

 

Hay un proyecto basico que permite la construcción de una vivienda de unos aprox. 225 m2 , todo en una misma planta.

La vivienda cuenta con una entrada con gran recibidor, una amplia cocina con despensa y una lavandería .

Salón comedor con salida a una terraza cubierta y a la zona de jardín y piscina. La piscina mide aprox . 21m2.

Tiene 3 dormitorios dobles, un estudio y dos baños completos con ducha y bañera.

 

Referente a la electricidad, hay una caseta con los contadores de la empresa eléctrica a 700 m , pero se recomienda poner energia solar. 

Agua a través de un pozo y está cercada con paredes de piedra.

hola
Recibir Información
Sobre este inmueble
Propiedades relacionadas
Mallorca