Ref. V00334
GRUNDSTÜCK MIT PROJEKT UND LIZENZ IN SANTANYÍ

AUF ANFRAGE

Santanyi
232m2
Wohnfläche
4
Zimmer
3
Badezimmer
2
Parkplatz
17269m2
Grundstück
GRUNDSTÜCK MIT PROJEKT UND LIZENZ IN SANTANYÍ
Santanyi / Mallorca

Grundstück von 17.000 m2 ca. 1Km. vom Dorf Santanyí entfernt mit genehmigtem Projekt und Baugenehmigung.

Schöne Aussicht auf die Kirche von Santanyí und die Berge.

Asphaltierte Zufahrtsstrasse zum Grundstück.

Vollständig eingezäunt mit Steinmauer.

Elektrizität und Wasser .

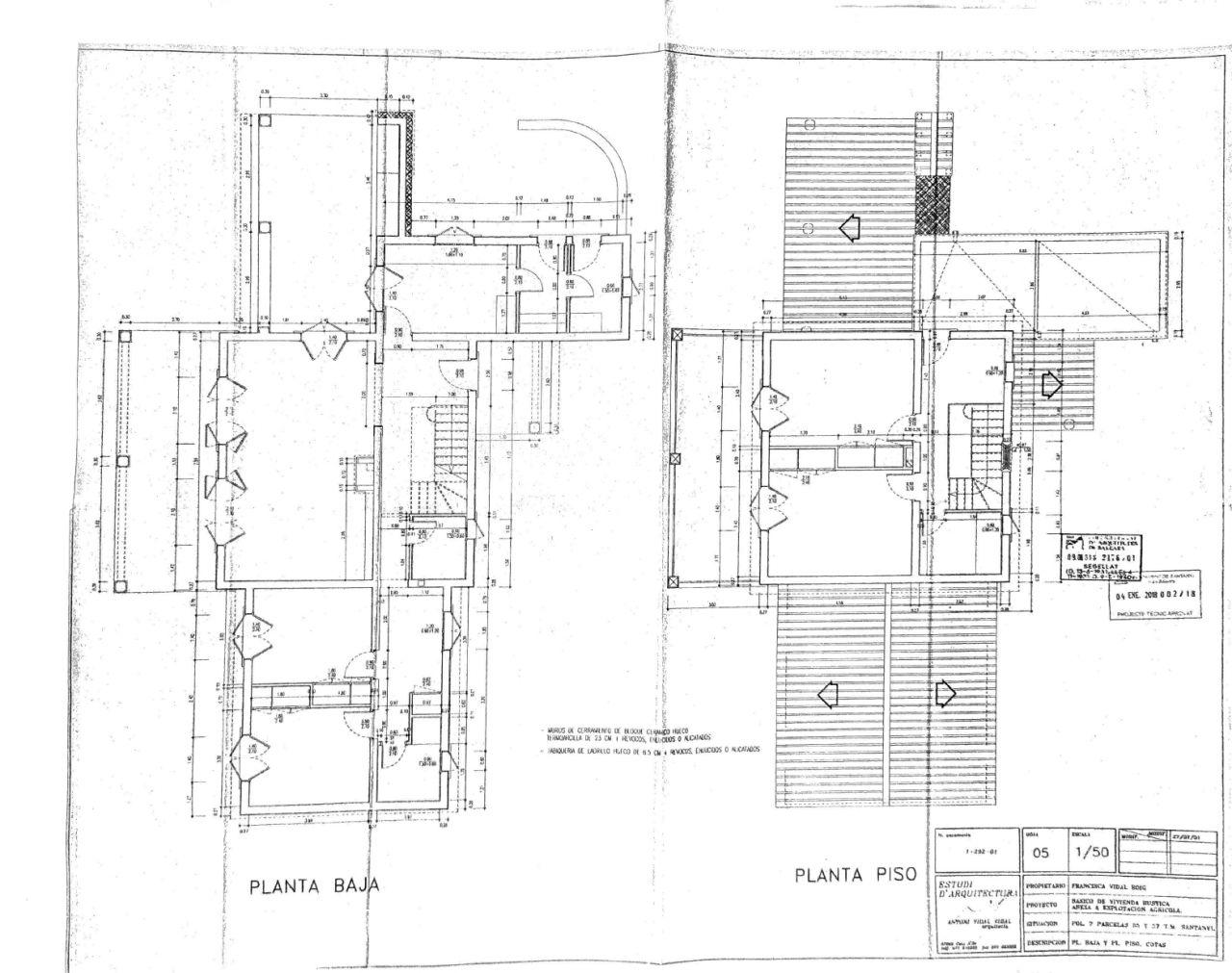
Das Projekt ist es, ein 2-stöckiges Haus von ca. 232m2 zu bauen.

Das Erdgeschoss hat ca. 166 m2, bestehend aus 2 Schlafzimmern, 2 Bädern und Küche mit Hauswirtschaftsraum.

Es gibt ein Wohn-/Esszimmer mit Zugang zu den Außenterrassen.

Im ersten Stock von ca. 65 m2 gibt es 2 Schlafzimmer mit Terrasse und 1 Badezimmer.

hola
Sie möchten mehr Informationen
Über diese Eigenschaft
Ähnliche Immobilien
Mallorca